安徽芜湖清水白肉批发市场有限公司
芜湖清水白肉批发市场有限公司(原芜湖清水白肉批发市场)成立于1993年1月,是中国肉类协会理事单位、安徽省肉类行业协会副会长单位、安徽省冷链发展联盟副理事长单位。公司坐落在安徽省芜湖市鸠江区清水街道芜屯路边,是一家集生猪交易屠宰、白肉批发、分割加工、冷藏保鲜、冷链配送为一体的现代化大型企业,承担安徽省冻肉储备、芜湖市猪肉储备以及芜湖市战略储备任务。
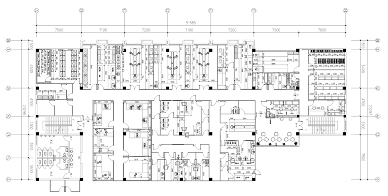
芜湖清水市场检验检测中心装修项目工程
单位名称:芜湖清水白肉批发市场
项目地址:安徽芜湖
项目面积:1500㎡
设计时间:2021年08月
办公前台

理化实验室

微生物实验室

实验室走廊

整体平面设计图

