欢迎访问意昂官方网站官网

能源材料


浙江中蓝新能源材料有限公司

编辑: 发布时间:2022-05-26 浏览:7292

浙江中蓝新能源材料有限公司



      浙江中蓝新能源材料有限公司(以下简称:公司)是由中国中化集团有限公司(2019年全球500强第88位)成员企业——中化蓝天集团有限公司控股的全资子公司。公司位于湖州市长兴县和平镇城南工业园区,主要从事锂离子电池电解液材料的研发、生产和销售。


      面向未来,浙江中蓝将秉承中化集团科学至上,知行合一的价值理念,以锂电行业标杆企业为目标,不断提升科技创新能力、核心竞争能力和可持续发展能力,为客户、股东、员工创造最大价值,成为客户信赖、社会尊重的锂电综合服务商。


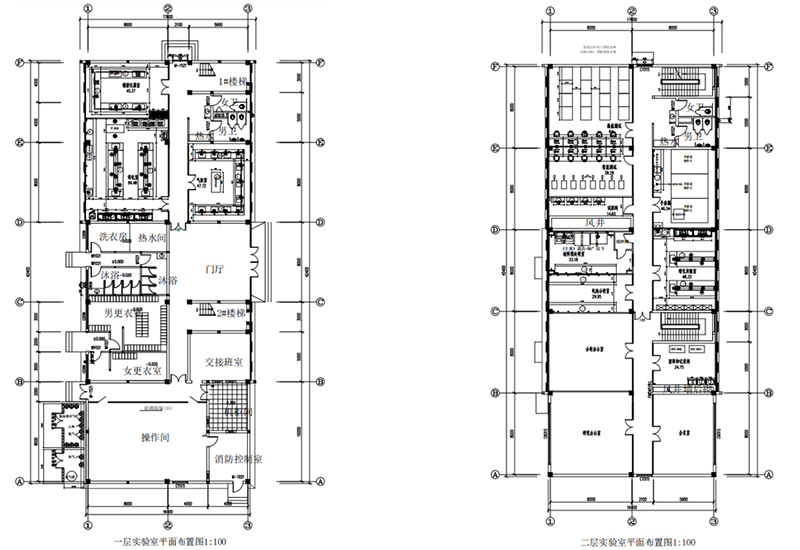
浙江中蓝锂电池检测中心

单位名称:浙江中蓝新能源材料有限公司

项目地址:浙江湖州

项目面积:640

设计时间:202008


理化实验室




气相室




实验室走廊




整体平面设计图